Located in the highly recognised Merino Street precinct, this well-configured commercial tenancy offers a practical and versatile workspace ideal for trade, light industrial, storage, or service-based businesses.
Equipped with 3-phase power and NBN connectivity, the property is ready to support a wide range of operations.
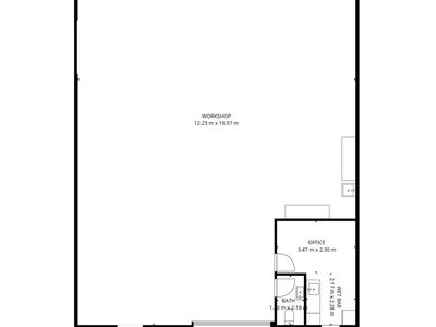
The space features high-bay electric roller door access with approximately 3.5m clearance, providing excellent functionality for vehicle access, deliveries, and equipment movement. Internal amenities include bathroom facilities and a kitchenette, ensuring convenience for staff.
A small office with its own separate entrance offers a dedicated admin or client-facing area, while the generous parking and turning space at the front of the tenancy allows for easy access for vehicles, staff, and visitors.
A flexible and well-located commercial offering combining functionality, access, and essential infrastructure.
• Merino Street precinct
• 3-phase power + nbn
• High bay electric roller door with 3.5m clearance
• Kitchenette & bathroom facilities
• Office area
• Easy to manoeuvre entry in & parking
Howell Property Group has no reason to doubt the accuracy of the information in this document which has been sourced from means which are considered reliable, however we cannot guarantee its validity. Prospective clients are advised to carry out their own investigations.



























