First home buyers be aware, the $20,000 first home, builders boost is still available.
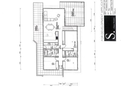
Lot 2/18 Weedon Avenue is an elevated 387m2 block that takes in the views of South Launceston and Kings Meadows as well as capturing mountain views.
Take advantage of this affordable strata block of land that comes with DA plans for a 178m2, three-bedroom home with two bathrooms, a double garage and an undercover alfresco deck to entertain friends and soak up those mountain views.
This 387m2 block of land is set back from the road, and only shares a stratum with one other home giving you an ideal hideaway on which to build your first new home.
DA plans are available to view by request and an onsite viewing of the land is by appointment only.
Be quick to secure this low-cost land option for building your new family home.





















