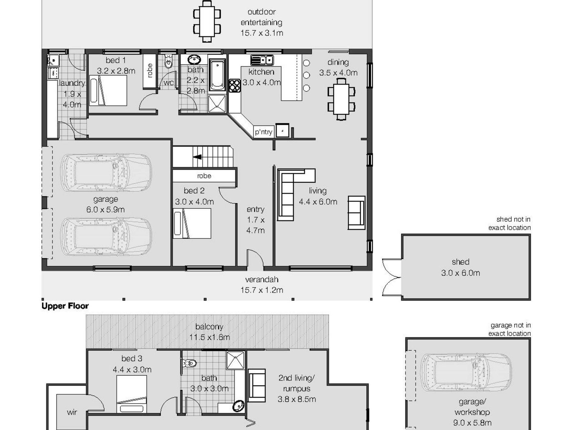
Looking for a spacious family home with a room for everyone and places for everything? This family home is just a hop, skip and a couple of fences away from the South Esk River where you can enjoy all the benefits of Hadspen living. Boating, swimming, fishing and walking your dog along the reserve. The home consists of two living areas, the first is a large family room with Tasmanian Oak floating floors that continue through to the dining and kitchen area. The second is an even larger family room featuring a cosy wood heater and views of the river from the balcony. The fully renovated kitchen compliments the flooring with warm Blackwood cabinetry, shiny black granite benches and quality Smeg appliances. There are four bedrooms and a study that also has new carpet throughout. Three of the bedrooms have built-ins and the main bedroom features a walk-in robe and doorway access to the second bathroom. Under the roofline and with internal access to the home you have the security and convenience of a double garage. From the dining area or through the separate laundry you can access the rear deck area that leads onto the fenced back yard, the separate paddock and a triple garage shed with two roller doors to store all the extra toys for river fun or for your own personal hobbies. This home is not only close to the river, it is also only ten minutes to Launceston, on the bus route for schools as well as the City Metro Bus Route. Hadspen is a perfect place to raise a family so why not give me a call today to book your viewing of this special family home.
Features
- Balcony
- Deck
- Built-in Wardrobes

















































