Step into this newly built home positioned just on the outskirts of George Town, offering fresh, modern living in a convenient location.
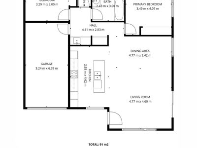
Both bedrooms (the primary is extra generous in size) are carpeted and feature built in storage and are located at either side of the large family bathroom with its freestanding bath, and separate shower – a handy 2nd toilet is also a convenient extra.
The laundry is “Euro style” with some good storage close by for bed linen, towels & coats.
At the heart of the home is a bright, open-plan living, dining, and kitchen area filled with natural light. The contemporary kitchen is well-equipped with a dishwasher, generous pantry space, and a breakfast bar—perfect for casual meals or entertaining. The flexible layout of the living area allows you to set it up to suit your lifestyle.
Outside, the yard is designed for simplicity, with minimal upkeep required beyond mowing the lawn. The home also includes a single garage with remote access and the added convenience of internal entry directly into the laundry.
Located just a short drive from the town centre.
• $550 per week rent
• $2,200 security deposit
• Available now
• Single-level home on a flat block
• Two bedrooms with built-in robes
• Main bathroom with bathtub + separate shower
• 2 toilets
• Open-plan living with sliding door access to the side yard
• Electric heating at the flick of a switch
• Low-maintenance outdoor space
• Remote-access single garage + driveway parking for another 2
Features
- Split-System Air Conditioning
- Split-System Heating
- Fully Fenced
- Outdoor Entertainment Area
- Remote Garage
- Secure Parking
- Broadband Internet Available
- Built-in Wardrobes
- Dishwasher







































