Within walking distance of the High Street shopping strip of Oatlands, the Aquatic Centre, Callington Mill and Lake Dulverton, 'Llewellyn House' presents a ideally located restoration project.
Circa 1900, the home's past life was the nearby Oatlands District School's 'school house' or 'headmasters residence', until 2002 when it was purchased by the current owner.
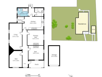
Set on an expansive 1401m2 parcel of land, the weatherboard iron roofed period home maintains a number original period finishes such as open fireplaces in each of the three bedrooms, hardwood floorboards, timber dado boards and picture rails.
Having recently been painting throughout 'Llewellyn House' offers the following key features:
- 3 bedrooms, each with a sunny aspect
- Formal lounge which could be turning into a 4th bedroom
- Spacious kitchen/dining room with original cabinetry + a walk-in pantry/utility room
- Large washroom/laundry
- Bathroom with shower over bathtub
The property is partly fenced with the fence along Stutzer Street requiring some attention. There is dual access to the property from the street along with a single lock-up garage.
The property does provide scope for future development, subject to council approval or leave as is and re-establish the country garden.
Oatlands is the major township in the Southern Midlands district and offers several services for residents, including the multi-purpose health centre, district school (offering education up to Year 12), IGA supermarket and a diverse range of specialty stores. Oatlands is only one hour and ten minutes north of Hobart CBD and just over 90 minutes south of Launceston. In recent times, Oatlands has become a hive of activity with several specialty stores opening, which have been well supported by locals and intrastate visitors.
To secure a piece of Midlands history, contact Nick Hay to arrange an inspection of 'Llewellyn House' at 5 Stuzter Street Oatlands.
Rental Estimate: $420 to $450 per week.
If you are unable to view the property, we offer virtual inspections.
Howell Property Group has no reason to doubt the accuracy of the information in this document which has been sourced from means which are considered reliable, however we cannot guarantee its validity. Prospective clients are advised to carry out their own investigations.
Features
- Open Fireplace
- Fully Fenced
- Shed
- Broadband Internet Available
- Floorboards

























































