Positioned in a central Launceston location just up Earl Street, this versatile commercial space offers an adaptable floorplan suited to a wide range of business uses.
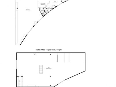
Spanning two levels, the property currently comprises two workshop areas, a generous open retail-style space, and four individual offices—providing flexibility for showroom, trade, studio or office-based operations. The ground floor is ideal for a showroom or customer-facing setup, while the mezzanine level lends itself perfectly to storage or additional workspace.
Large street-facing windows deliver excellent exposure to passing foot traffic while also allowing a load of natural light throughout the space. Convenient public parking is readily available, with on-street metered parking directly outside and nearby public parking lots also close by.
Additional features include bathroom facilities, an eat-in kitchenette, NBN readiness with existing network cabling, and multiple reverse-cycle heating and cooling units for easy temperature control.
This adaptable premises would suit a wide range of business types, including but not limited to a retail showroom, trade supplies, design or creative studio, professional offices, consulting rooms, fitness or wellbeing studio, light workshop, or a combination of office and storage. The flexible layout and strong street presence make it ideal for businesses seeking visibility, functionality and a central city location.
An unbeatable opportunity to secure a high-visibility, flexible commercial premises in a well-connected city location.
• Central CBD locale
• Choice of designated offices
• Workshop areas x 2
• Mezzanine for storage
• NBN + network cabling installed
• Electric heating & cooling
• Multiple bathroom facilities
• Spacious lunchroom with kitchenette
• Excellent street presence
• Large windows provide space with natural light





























